

Монтаж отопления на газовом котле Вайлант (Vaillant) с разводкой радиаторов по дому





Тепловой аккумулятор. Схема подключения.






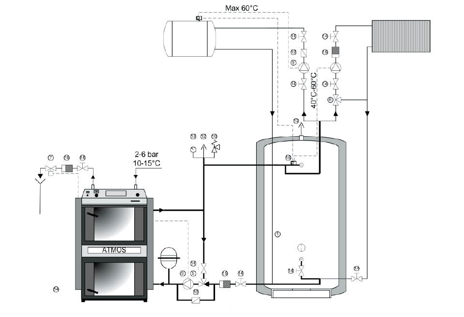
Схемы подключения котла




Обвязка твердотопливного котла
Статья по теме: Методы измерения сопротивления петли фаза нуль
Разновидности схем, особенности обвязки котлов.
Схема подключения газового котла. Подключение настенного котла